Italiano
English
330.000 €

PEGLI Bifamiliare a pochi passi dal lungomare

Appartamento in vendita • Genova (Pegli) - Via Bavastro
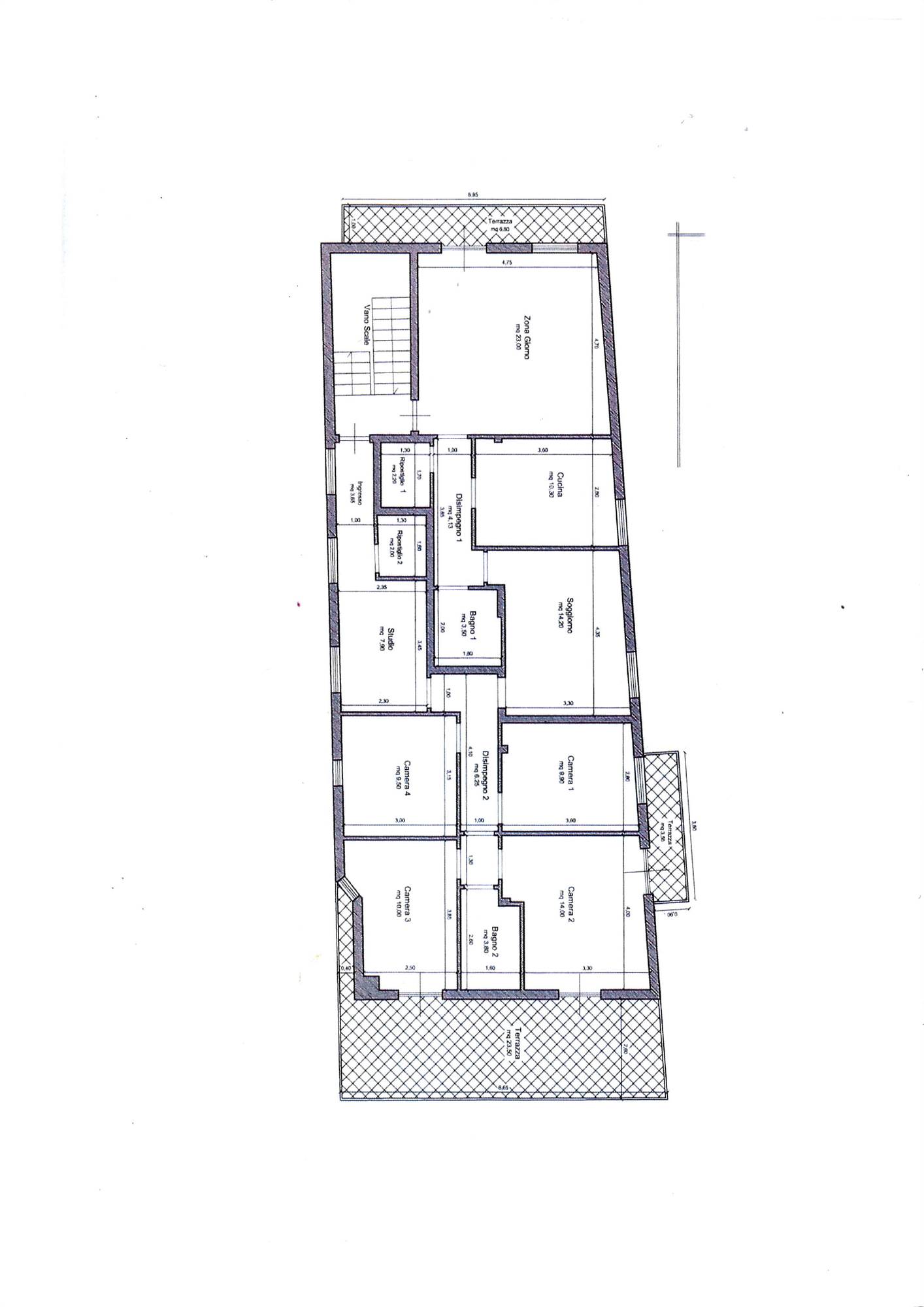
PEGLI Nel cuore di Pegli, a soli 100 metri dal lungomare, proponiamo una rara opportunità immobiliare: deliziosa casetta bifamiliare composta da due appartamenti attigui di circa 80 mq ciascuno (6 vani).
Una soluzione ideale per chi desidera vivere vicino al mare mantenendo indipendenza, comfort e versatilità.
Entrambe le unità sono ben distribuite, dotate di balcone/terrazzo e cantina.
Gli impianti sono completamente separati e funzionanti, con riscaldamento autonomo: perfetti per due nuclei familiari o per chi desidera un’abitazione principale con seconda unità da mettere a reddito.
Un magnifico terrazzo sovrastante di circa 200 mq, già attrezzato con luce, acqua e gazebo: uno spazio esclusivo e panoramico dove vivere momenti di relax, organizzare cene all’aperto o creare una zona solarium riservata.
Posizione privilegiata, a due passi dal mare e comoda a servizi, negozi e mezzi. Euro 330.000
010.59.28.28

Caratteristiche principali
Codice
8386
Città
Genova (Pegli)
Categoria
Appartamento
Prezzo
330.000 €
Locali
12
Camere
4
Bagni
2
Mq
160
Balconi
2
Terrazzi
1
mq Terrazzo
200
Piano
1
Classe energetica
F
Stato Immobile
Buono
Grado
Economico
Posizione
Mare
Panorama
Vista Aperta
Orientamento
Nord Ovest Sud Est
Giardino
No
Tipo Soggiorno
Soggiorno
Tipo Cucina
Abitabile
Riscaldamento
Autonomo
Tipo Riscaldam.
Caldaia
Tipo Impianto
Radiatori
Fonte Energetica
Metano
Acqua Calda
Autonoma
Raffrescamento
Split
Infissi
Alluminio Doppio Vetro
Serramenti
Ottimo
Persiana
Persiana PVC
Pavim. Giorno
Ceramica
Pavim. Notte
Ceramica
Pavim. Cucina
Ceramica
Pavim. Bagno
Ceramica
Accesso Disabili
No

Accessori: Aria Condizionata, Doppi Vetri, Fibra Ottica, Porta Blindata, Ripostiglio

Mappa
Via Bavastro , Genova (GE)
Condividi su
Cookie preference