Italiano
English
980.000 €

SANT ILARIO la Villa dei Sogni

Villa in vendita • Genova (Nervi) - VIA COSTA DI CANTALUPO
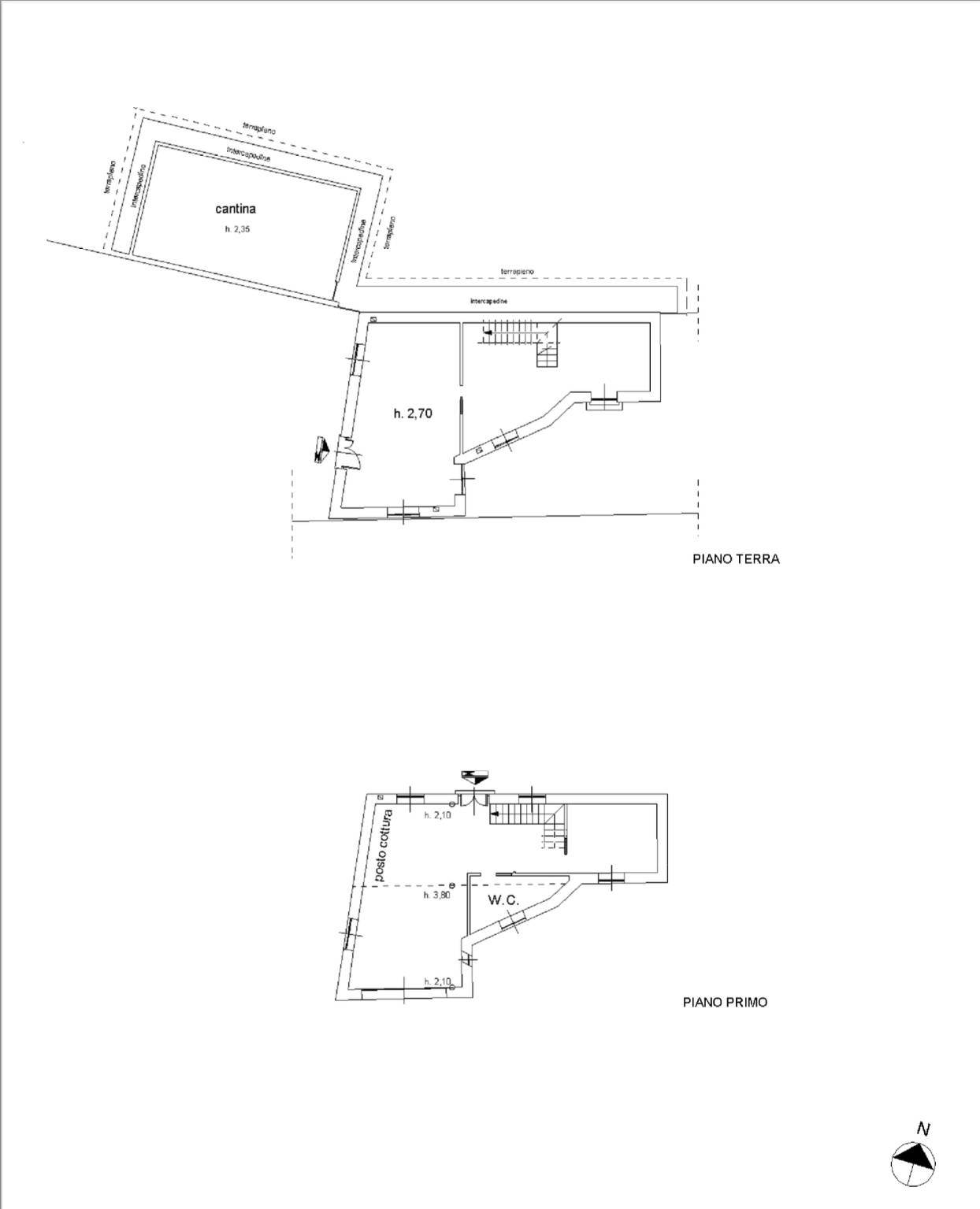
SANT ILARIO villa totalmente indipendente di recente costruzione in stile rustico. Nella parte più panoramica della collina splendida villa in pietra con accesso carrabile da ampio cancello elettrico. Fascinosi 7,5 vani di 145 mq. disposti su due livelli, due grandi terrazzi attrezzati da cui si gode un'incredibile vista mare e il suono della natura.
Completa la proprietà un'ampia taverna oltre a varie fasce di terreno ad uliveto, dove sarebbe possibile creare una piscina, e area parcheggio per 4 autovetture. Ideale anche per due nuclei familiari che condividano gli spazi comuni. Euro 980.000. - tel. 010.89.87.887 - 366.451.6843 - www.immobiliarechiesa.it
Caratteristiche principali
Codice
8109
Città
Genova (Nervi)
Categoria
Villa
Prezzo
980.000 €
Locali
7,5
Camere
3
Bagni
2
Mq
145
Posti auto
4
Terrazzi
1
mq Terrazzo
60
Classe energetica
F
Stato Immobile
Ristrutturato
Grado
Signorile
Posizione
Collina
Panorama
Vista Mare
Orientamento
Nord Ovest Sud Est
Lati Liberi
4
Giardino
Privato
Arredi
Semi Arredato
Tipo Soggiorno
Doppio
Tipo Cucina
Abitabile
Riscaldamento
Autonomo
Tipo Riscaldam.
Caldaia
Tipo Impianto
Radiatori
Fonte Energetica
Metano
Acqua Calda
Autonoma
Raffrescamento
Split
Infissi
Legno Doppio Vetro
Serramenti
Ottimo
Persiana
Persiana Legno
Pavim. Giorno
Cotto
Pavim. Notte
Parquet
Pavim. Cucina
Cotto
Pavim. Bagno
Cotto

Accessori: Aria Condizionata, Armadio a Muro, Camino, Cancello Elettrico, Doppi Vetri, Lavanderia, Porta Blindata, Ripostiglio, Tavolini Esterni

Mappa
VIA COSTA DI CANTALUPO , Genova (GE)
Condividi su
Cookie preference